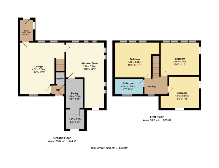
Ground Floor
Entrance Hallway
Composite double glazed front door, double glazed side window, tiled flooring and ceiling point.
Lounge
Double glazed mullion front window, double glazed rear window, electric fire with feature fireplace, two electric storage heaters, laminate flooring, ceiling beams and ceiling point.
Dining Kitchen
A contemporary fully fitted Kitchen with a range of wall and base units with complementary work surfaces, 1 1/2 bowl sink unit with drainer, four ring electric hob, electric oven, plumbed for washing machine and dryer, electric storage heater, ceiling beams, ceiling points, double glazed front window, two side mullion windows and double glazed rear window.
Utility Room & Storage Room
Ceiling beams, ceiling points, works surfaces and double glazed rear window.
Rear Hallway
Double glazed wooden back door, storage cupboard and ceiling point.
First Floor
Landing
Double glazed window, ceiling beams and ceiling point.
Bedroom One
Double glazed mullion front window, electric storage heater and ceiling point.
Bedroom Two
Double glazed mullion front window & side window, loft access, electric storage heater and ceiling point.
Bedroom Three
Double glazed side and rear windows, electric storage heater, ceiling beams and ceiling point.
Family Bathroom
A modern three-piece white bathroom suite comprising of a panel bath with mixer tap and shower head, glass shower screen, low level WC, wash hand basin, towel radiator, par tiled walls, storage cupboard housing the water tank, wall light, ceiling beams and double glazed rear window.
Outside
Gardens & Parking
Front: Paved pathway, lawn area with shrubs.
Rear: Paved patio area, lawn area, borders and shrubs with gated access to the side.
Allocated parking for vehicles for off road parking..



























