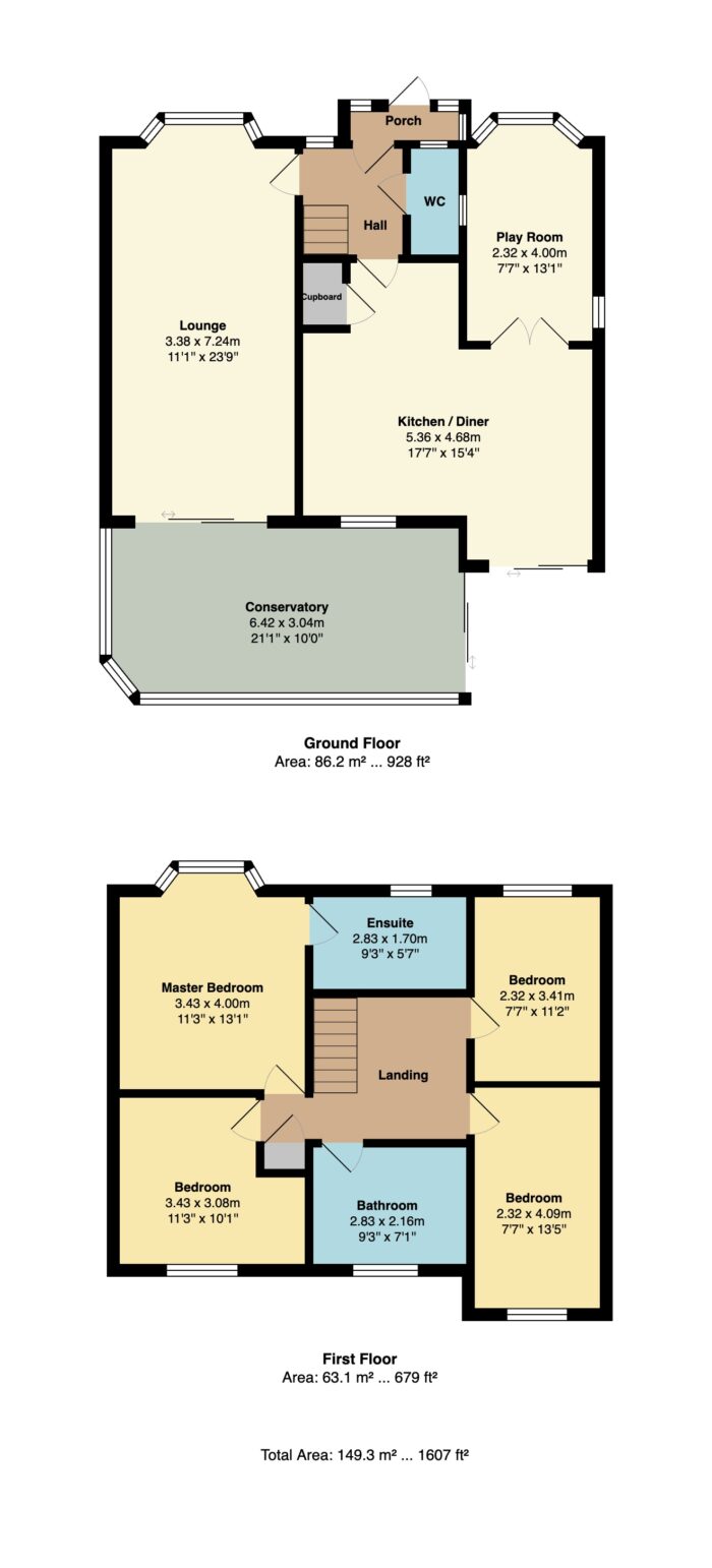
ground floor
Porch
UPVC double glazed front door and windows, tiled flooring.
Hallway
UPVC double glazed front door, radiator, ceiling coving, ceiling point and stairs leading to the first floor landing.
Guest WC
A modern two-piece white suite comprising of a wash hand basin with storage cupboard underneath, low level WC, part tiled walls, tiled flooring, extractor unit, ceiling point and UPVC double glazed front window.
Lounge
UPVC double glazed bay fronted window, recess gas effect log fire with feature surround, radiators, ceiling coving and ceiling points.
Sitting Room
UPVC double glazed front window, radiator, ceiling point and UPVC double glazed side window.
Conservatory
UPVC double glazed sliding patio doors, UPVC double glazed windows, radiator, fully tiled walls, wall lights and power points.
Open Plan Dining Kitchen
A modern range of wall and base units with complementary work surface, five ring gas hob with extractor unit above, 1 1/2 bowl sink unit with drainer, double gas oven, integrated dishwasher, plumbed for washing machine, ceiling spotlights, storage cupboard, laminate flooring, radiator, ceiling point, ceiling spotlights, storage cupboard housing the combi boiler, UPVC double glazed sliding patio door and UPVC double glazed rear window.
first floor
Landing
Loft access, storage cupboard and ceiling point.
Bedroom One
UPVC double glazed front window, radiator and ceiling point.
En-Suite Shower Room
A modern three-piece white suite comprising of a walk-in shower unit, low level WC, wash hand basin with storage cupboard underneath, fully tiled walls and flooring, extractor unit, ceiling spotlights, chrome radiator and UPVC double glazed front window.
Bedroom Two
UPVC double bay fronted window, radiator and ceiling point.
Bedroom Three
UPVC double glazed rear window, radiator, laminate flooring and ceiling spotlights.
Bedroom Four
UPVC double glazed rear window, radiator and ceiling point.
Family Bathroom
A modern three-piece white suite comprising of a P shaped panel bath with mixer taps and electric shower above, low-level WC, wash hand basin, chrome towel radiator, fully tiled walls and flooring, ceiling spotlights and UPVC double glazed rear window.
Outside
Gardens & Parking
Front: Large flagged driveway for ample off road parking, lawn area with with borders and shrubs.
Rear: A flagged patio area, lawn area with borders and shrubs, fence panels surround with gated access to the side, Wooden shed. Woodland aspect to the rear - Not overlooked.



































