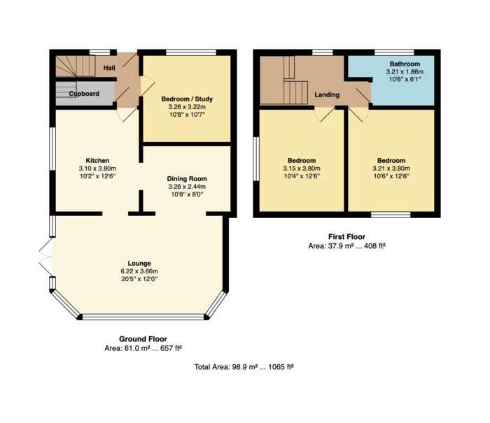
Ground Floor
Entrance Hallway
Composite double glazed front door, UPVC double glazed front window, storage cupboard, radiator, alarm pad, ceiling point and stairs leading to the first floor landing.
Lounge
UPVC double glazed rear window, UPVC double glazed French patio doors, radiator, electric log burning stove, ceiling spotlight, laminate flooring and ceiling point
Dining Room
Fitted wall units, laminate flooring and ceiling point.
Kitchen
A range of wall and base units with complementary work surfaces, one and half bowl sink unit with drainer, gas cooker with four ring gas hob with extractor unit above, plumbed for washing machine and dishwasher, storage cupboard combi boiler, laminated flooring, radiator, ceiling spotlights, part tiled walls UPVC double glazed side window.
Bedroom Three / Sitting Room
UPVC double glazed front window, radiator, laminate flooring and ceiling point .
First Floor
Landing
UPVC double glazed side window, storage cupboard and ceiling point.
Bedroom One
UPVC double glazed side window, radiator, loft access and ceiling point.
Bedroom Two
UPVC double glazed rear window, radiator and ceiling point.
Family Bathroom
A modern three-piece white bathroom suite comprising of a panel bath, mixer tap, shower above with glass shower screen, low level WC, wash hand basin with storage drawers underneath, chrome towel radiator, fully tiled walls and flooring, ceiling spotlights and UPVC double glazed from window.
Outside
Garage
A single detached garage with manual up and over door, side door.
Gardens & Parking
Front: Gated access, flagged pathway, Astro Turf lawn with well established borders and shrubs.
Rear: Driveway to the front for off road parking. Astro Turf lawn, flagged pathway and well established borders.





















