Heaton Street, Prestwich

Manchester, M25 1HP

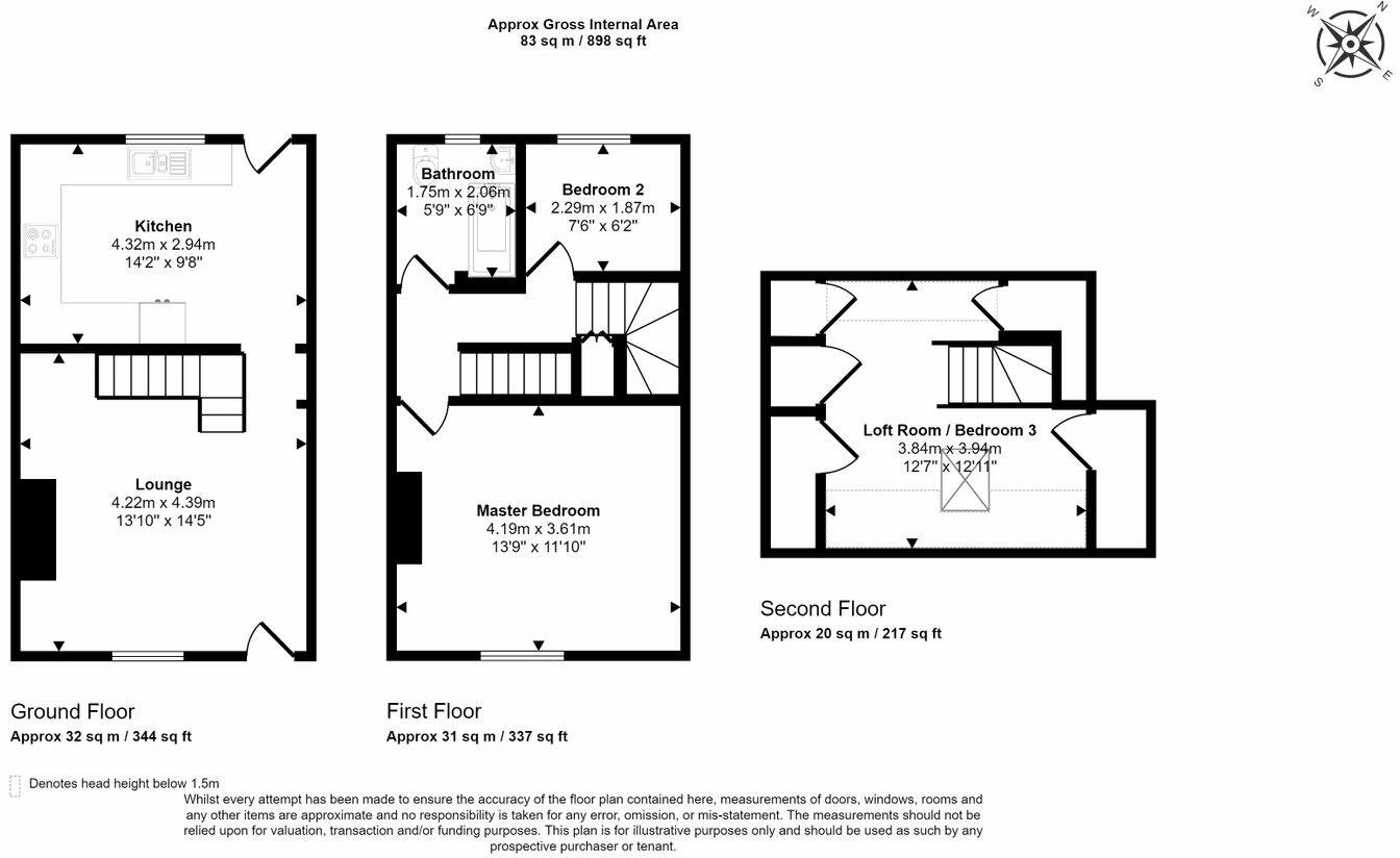
** AVAILABLE IMMEDIATELY ** MODERN DINING KITCHEN & BATHROOM ** TWO GOOD SIZED BEDROOMS PLUS LOFT ROOM ** MUST SEE!! ** Welcome to this charming mid-terrace home, ideally situated on Heaton Street in the highly sought-after area of Prestwich, Manchester. The property features a cosy reception room, perfect for relaxing or entertaining, along with an eye-catching, modern fitted dining kitchen. Upstairs, there are two well-proportioned bedrooms, offering comfortable accommodation for a small family, guests, or a home office. The home is completed by a well-appointed, contemporary three-piece family bathroom, providing both style and convenience. Located within a vibrant neighbourhood, this property offers the perfect balance of peaceful living and excellent access to local amenities. Enjoy nearby parks, shops, and transport links, with Manchester city centre just a short distance away. Don’t miss the opportunity to make this delightful house your new home.

Contact our Ramsbottom office today to arrange a viewing on 01706 489966.

Rent: £1200pcm

Deposit: £1200.00

Local Authority/Council Tax: Bury Council: A Annual Amount: £1609.72 Approx.

Flood Risk: Very Low

Broadband availability: Ultrafast: Download: 2000Mbps Upload: 2000Mbps

Mobile Coverage: EE - Good outdoor, variable in-home, Vodafone - Good outdoor, variable in-home, Three - Good outdoor, variable in-home, O2 - Good outdoor and in-home.

Read More
£1,200 pcm
  • Book a Viewing
  • Floorplan
  • View EPC
  • View More Info
  • Call: 01706 489966
Terraced House
  • 3
  • 1
  • 1
  • Property Features

    • AVAILABLE IMMEDIATELY
    • HIGHLY SOUGHT AFTER LOCATION
    • STUNNING TWO BEDROOM PLUS LOFT ROOM MID TERRACE
    • SPACIOUS LOUNGE
    • CONTEMPORARY DINING KITCHEN WITH APPLIANCES
    • MODERN THREE PIECE FAMILY BATHROOM
    • GAS CENTRAL HEATING & FULLY DOUBLE GLAZED
    • ENCLOSED REAR YARD AND FRONT GARDEN
    • SUPERB LINKS TO MANCHESTER CITY CENTRE
    • VIEWING HIGHLY RECOMMENDED AND STRICTLY BY APPOINTMENT VIA OUR RAMSBOTTOM OFFICE
    • Type: Terraced House
    • Availability: Let Agreed
    • Bedrooms: 3
    • Bathrooms: 1
    • Reception Rooms: 1
    • Council Tax Band: A
    • Available: Now

    Ground Floor

    Lounge

    Dining Kitchen

    First Floor

    Landing

    Bedroom One

    Bedroom Two

    Family Bathroom

    Second Floor

    Loft Room / Bedroom Three

    Outside

    Yard

  • Floorplan for Heaton Street, Prestwich
  • EPC for Heaton Street, Prestwich

Rent Affordability Calculator

Use our quick and easy mortgage calculator below to work out your proposed monthly payments

Request a Valuation

Our Valuation

How much is your home worth? Enter some details for your free onscreen valuation.

Start Now